![图片[1] - 北京汉能(Hanergy)清洁能源展示中心|JPG/MP4|27.49M - 展示酷](https://cdn.zhanshi.cool/wp-content/uploads/2025/01/20250111004624182-汉能清洁能源展示中心-德立创意策划-ArchDaily-3.jpg!imagetowebp_minify)
清洁盛会
德立柏林和德立创意策划正为一家全球领先的太阳能电池板和可再生能源生产企业——汉能控股集团,设计独特的展厅和展览 概念,主题是能源生产的历史和未来。
![图片[2] - 北京汉能(Hanergy)清洁能源展示中心|JPG/MP4|27.49M - 展示酷](https://cdn.zhanshi.cool/wp-content/uploads/2025/01/20250111004628853-汉能清洁能源展示中心-德立创意策划-ArchDaily-2.jpg!imagetowebp_minify)
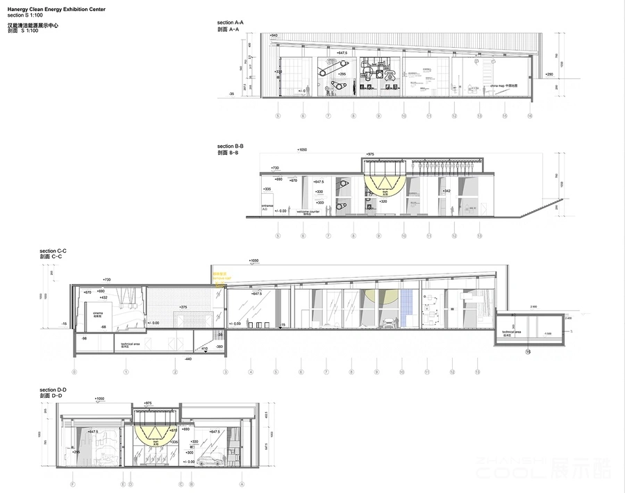
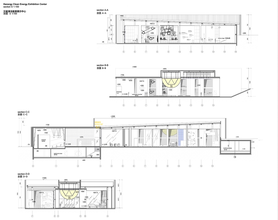
该清洁能源展馆占地面积超过1900平方米,是独具特色的展览体验中心。通过180°的巨大电影屏幕,观众可了解到汉能的发展历程、取得的成功以及可持续能源生产的未来。为此,德立柏林正在精心制作一段长约10分钟的影片,当中不乏使用特殊摄像机拍摄、无人驾驶飞机捕捉和电脑影像合成技术(CGI)制作的,令人叹为观止的镜头。
![图片[3] - 北京汉能(Hanergy)清洁能源展示中心|JPG/MP4|27.49M - 展示酷](https://cdn.zhanshi.cool/wp-content/uploads/2025/01/20250111004621349-汉能清洁能源展示中心-德立创意策划-ArchDaily-4.jpg!imagetowebp_minify)
![图片[4] - 北京汉能(Hanergy)清洁能源展示中心|JPG/MP4|27.49M - 展示酷](https://cdn.zhanshi.cool/wp-content/uploads/2025/01/20250111004623797-汉能清洁能源展示中心-德立创意策划-ArchDaily-5.jpg!imagetowebp_minify)
在可预见的未来,汉能的薄膜光伏发电系统将成为一项尖端技术。作为一家跨国企业,汉能致力于追求利用清洁能源让世界变得更美好的目标。
![图片[5] - 北京汉能(Hanergy)清洁能源展示中心|JPG/MP4|27.49M - 展示酷](https://cdn.zhanshi.cool/wp-content/uploads/2025/01/20250111004620520-汉能清洁能源展示中心-德立创意策划-ArchDaily-6.jpg!imagetowebp_minify)
![图片[6] - 北京汉能(Hanergy)清洁能源展示中心|JPG/MP4|27.49M - 展示酷](https://cdn.zhanshi.cool/wp-content/uploads/2025/01/20250111004627296-汉能清洁能源展示中心-德立创意策划-ArchDaily.jpg!imagetowebp_minify)
![图片[7] - 北京汉能(Hanergy)清洁能源展示中心|JPG/MP4|27.49M - 展示酷](https://cdn.zhanshi.cool/wp-content/uploads/2025/01/20250111004622471-Ulf-Buschleb.jpg!imagetowebp_minify)
![图片[8] - 北京汉能(Hanergy)清洁能源展示中心|JPG/MP4|27.49M - 展示酷](https://cdn.zhanshi.cool/wp-content/uploads/2025/01/20250111004619818-汉能清洁能源展示中心-德立创意策划.jpg!imagetowebp_minify)
![图片[9] - 北京汉能(Hanergy)清洁能源展示中心|JPG/MP4|27.49M - 展示酷](https://cdn.zhanshi.cool/wp-content/uploads/2025/01/20250111004618162-汉能清洁能源展示中心-德立创意策划-2.jpg!imagetowebp_minify)
![图片[10] - 北京汉能(Hanergy)清洁能源展示中心|JPG/MP4|27.49M - 展示酷](https://cdn.zhanshi.cool/wp-content/uploads/2025/01/20250111004617219-汉能清洁能源展示中心-德立创意策划-3.jpg!imagetowebp_minify)
![图片[11] - 北京汉能(Hanergy)清洁能源展示中心|JPG/MP4|27.49M - 展示酷](https://cdn.zhanshi.cool/wp-content/uploads/2025/01/20250111004616778-汉能清洁能源展示中心-德立创意策划-5.jpg!imagetowebp_minify)
![图片[12] - 北京汉能(Hanergy)清洁能源展示中心|JPG/MP4|27.49M - 展示酷](https://cdn.zhanshi.cool/wp-content/uploads/2025/01/20250111004615531-汉能清洁能源展示中心-德立创意策划-4.jpg!imagetowebp_minify)
![图片[13] - 北京汉能(Hanergy)清洁能源展示中心|JPG/MP4|27.49M - 展示酷](https://cdn.zhanshi.cool/wp-content/uploads/2025/01/20250111004624182-汉能清洁能源展示中心-德立创意策划-ArchDaily-3.jpg!imagetowebp_minify)
![图片[14] - 北京汉能(Hanergy)清洁能源展示中心|JPG/MP4|27.49M - 展示酷](https://cdn.zhanshi.cool/wp-content/uploads/2025/01/20250111004620520-汉能清洁能源展示中心-德立创意策划-ArchDaily-6.jpg!imagetowebp_minify)
Tips:1.内容图片或视频可能会有压缩,若文章提供下载服务,获取更多内容(无展示酷水印)可在下方下载; 2.没有百度网盘会员的用户,建议用123云盘可获得更快的下载速度。
© 版权声明
THE END

















工程机械游客中心展厅3-720x540.jpg)





















![表情[baoquan] - 展示酷](https://www.zhanshi.cool/wp-content/themes/zibll/img/smilies/baoquan.gif)


暂无评论内容